NFCCA

Stories from the NFCCA Newsletter, the “Northwood News”

Northwood News ♦ February 2008

Proposed Adult Soccer Field for North Four Corners Park is Dropped from County Executive’s Budget

By Carole Barth

I am happy to report a very important victory in our fight to save Rachel Carson Meadow.  County Executive Ike Leggett has released his first full six-year capital construction budget and proposed program (CIP).  Mr. Leggett recommended Park and Planning’s proposed soccer field project be dropped from the CIP.  The recommendation reads, “The Executive does not support this project due to significant community concerns that have not been fully addressed.  The Executive recommends that the proposed Park and Planning Bonds and Program Open Space be used to fund other priorities.”

This is a much better outcome for us than if Mr. Leggett had merely indicated that the expenditure would not be prudent in the current budget climate.  It recognizes that, even if more money becomes available in the future, any plan needs to consider the impact to the surrounding community.  When I spoke to him, Mr. Leggett specifically mentioned the letters he had received from the community.  It is good to know that our input actually made a difference.  Too often, government speaks to the public but forgets to listen.

As exciting as this news is, we can’t stop our efforts yet.  To date, park planners are proceeding as if nothing has happened.


The proposed plan for developing North Four Corners Park.
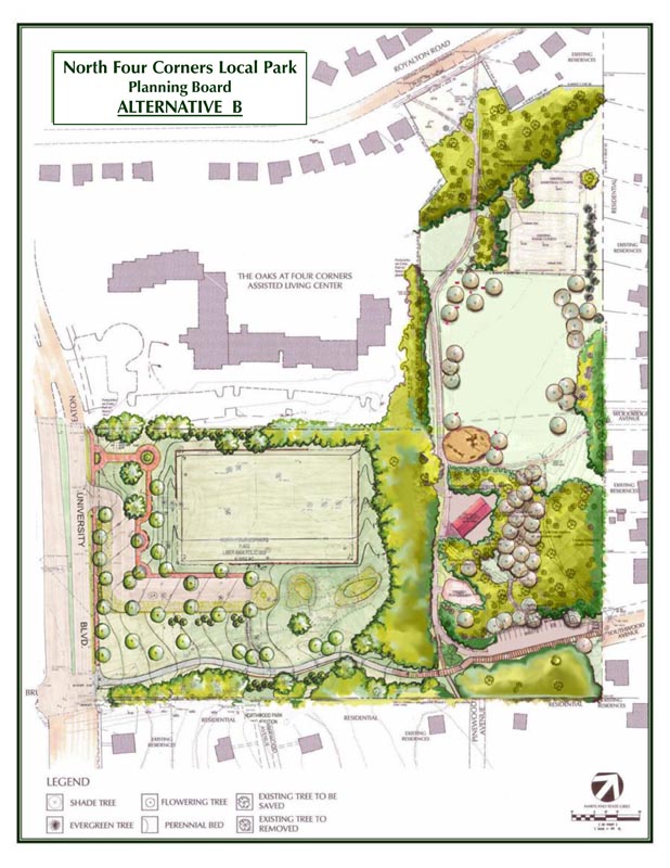
On December 6, the Planning Board directed staff to try yet another redesign of the Olympic-sized adult soccer field proposed for North Four Corners Park.  The Commissioners asked to see a design where the field would be built against the property line between the Oaks and the meadow.  In other words, instead of placing the field at a diagonal in the middle of the property, this design would place the long side of the rectangle along the property line.  The Commissioners proposed this ostensibly to save more trees and to provide more of a buffer between the field and the houses on Timberwood and Pinewood.

Staff has responded with two versions of this option (each with a different parking lot configuration).  Here is a link to the designs:  cc.bingj.com/cache.aspx?q=fourcorners_park.shtm&d=4911638911714965&mkt=en-US&setlang=en-US&w=qfEb9NJ0BaC5jjSH4H5YtQu1WQZ5_eOk.  [Note:  original URL is no longer active.]  (Alternative B is shown at left).  This rearrangement, however, does not address community concerns.  Due to the massive size of the field and the hilly terrain, these alternatives would still require massive earthmoving and would still destroy the existing trees.  Moreover, this East-West field orientation would mean one team is looking into the sun.  Choosing between these new designs and staff’s latest preferred design (which is almost the same as their last version) is essentially meaningless.  It’s like choosing what color and model of bulldozer they use; the end result is still destruction of the meadow.

The Planning Board will act on these alternatives on January 31.  At that time we should get a sense of how willing they are to fight to get this item restored to the budget.  Here is a link to see archived recordings of Planning Board meetings, decisions, and staff reports:  [Note:  URL no longer active].

Even if Park and Planning decides to shelve the project, we will still want to participate in the County Council’s budget process.  The County Council will review the project this spring and, if they want to, they can put it back in the budget.  Also, we still have to fight for what we do want (preservation of the site’s natural character, a playground for older children, better maintenance, and better management).  We also have to watch in case Parks decides to repermit the existing field to adult groups for all-day play.  To help keep that from happening, we will continue looking at Park and Planning’s needs assessment and alternatives study.  Still, our request for sensible park spending remains very timely in light of continuing revenue shortfalls.

So if you are circulating petitions, writing letters, or preparing testimony for the Council, please keep it up.  Thank you letters to Mr. Leggett and OMB Director Joe Beach would also be in order.  And be sure to save the date for our first-ever Rachel Carson Meadow Festival on Sunday afternoon, May 4.   ■


   © 2008 NFCCA  [Source: https://nfcca.org/news/nn200802e.html]